19. August 2025 Martina

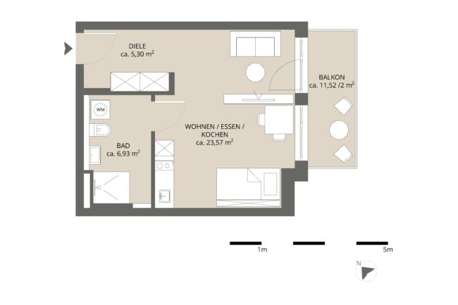
Grundriss-Wohnung-5-OG